Privates Bauen
Neubau eines Mehrfamilienhauses
Neubau eines Mehrfamilienhauses
- Massivbauweise
BRUTTOGESCHOSSFLÄCHE
858 m²²
Bauherr
Privater
Objektplanung
Werkgruppe Kleinmachnow
Unsere Leistung
Tragwerksplanung LP 1-6 + 8
Planungs- und Ausführungszeitraum
2021-2023
Nachverdichtung im Bestand – Dachgeschossausbau in Berlin
- 6-geschossiges Wohngebäudeensemble, Ausbau Dachgeschoss und Errichtung von Dachterrassen
- Umbau
BRUTTOGESCHOSSFLÄCHE
3.183 m²
BAUHERR:
Acrenovo Vision II GmbH & Co.KG
Architekt:
dieBauingenieure Generalplaner GmbH
Unsere Leistung:
Tragwerksplanung LP 1-6
Planungs- und Ausführungszeitraum:
2019-2022
Wiederherstellung des Dachgeschosses nach Brandschaden
- Mehrfamilienhaus in Jüterbog
- Neuaufbau
Umbauter Raum im Dachgeschoss
Dachgeschoss 200 m²
Bauherr
Privater Bauherr
Architekt
Ingenieurbüro Meier, Jüterbog
Unsere Leistung
Tragwerksplanung LP 1-6
Planungs- und Ausführungszeitraum
2019
Umbau einer Metallbauwerkstatt zum Mehrfamilienhaus und Umbau einer Remise zum Büro
- Umbau von 4 Wohnungen und einer mehrgeschossigen Büroeinheit
Bruttogeschossfläche
550 m²
Bauherr
Privat
Architekt
Carlos Lara, Alexander Hartmann
Unsere Leistung
Tragwerksplanung LP 1-6, Wärmeschutz, Schallschutz
Planungs- und Ausführungszeitraum
2016-2018
Denkmalgerechter Umbau und Sanierung des Torhauses in Paretz
- Kernsanierung mit Dachgeschossausbau unter Wahrung der historischen Bausubstanz
- Tiefgründung in Teilbereichen zur dauerhaften Bauwerkssicherung
Bruttogeschossfläche
785 m²
Bauherr
Privat
Architekt
Mola + Winkelmüller Architekten GmbH BDA, Berlin
Unsere Leistung
Tragwerksplanung LP 1-6, Wärmeschutz
Planungs- und Ausführungszeitraum
2013-2016
Mehrfamilienhaus in der Schlossstraße Potsdam
- Umbau und Sanierung eines denkmalgeschützten Gebäudeensembles in Nachbarschaft zum Potsdamer Kutschstall
- Umbau des Gebäudebestandes in Vorder-. Seiten- und Hinterhaus
- Einbau eines Aufzuges, Anbau von Balkonen, Aufstockung des Hinterhauses
Bruttogeschossfläche
1200 m²
Bauherr
Privat
Architekt
SKEIB Architekten, Potsdam
Unsere Leistung
Tragwerksplanung LP 1-6
Planungs- und Ausführungszeitraum
2008-2011
Architektenhaus in Caputh
- Neubau eines mehrgeschossigen, ebenenversetzten Massivbaus mit großflächigen Glasfronten
- Errichtung in Hanglage
Bruttogeschossfläche
380 m²
Bauherr
Privat
Architekt
e.hummel architekten, Schwielowsee
Unsere Leistung
Tragwerksplanung LP 1-6, Wärmeschutz
Planungs- und Ausführungszeitraum
2011-2012
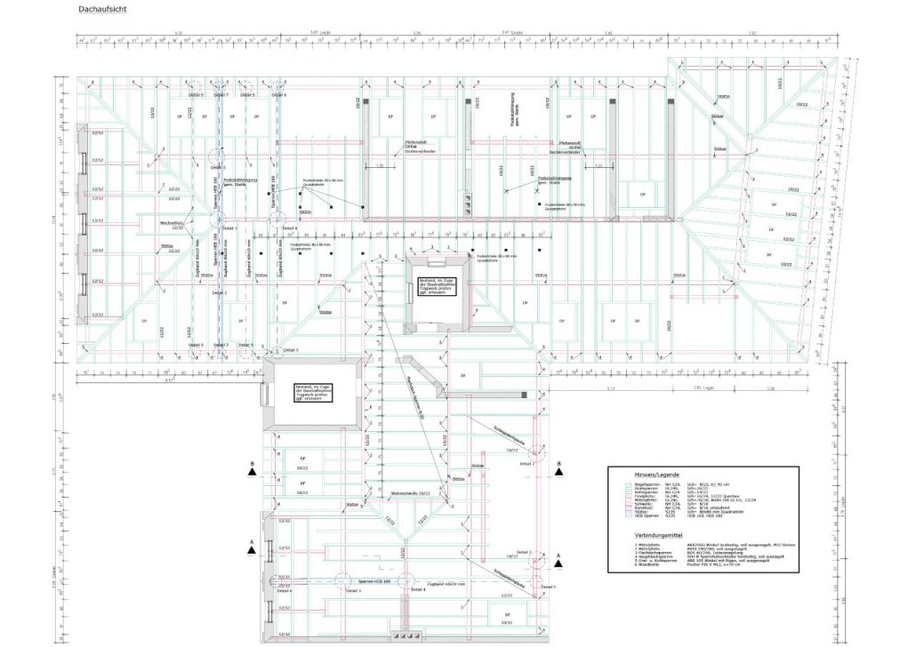
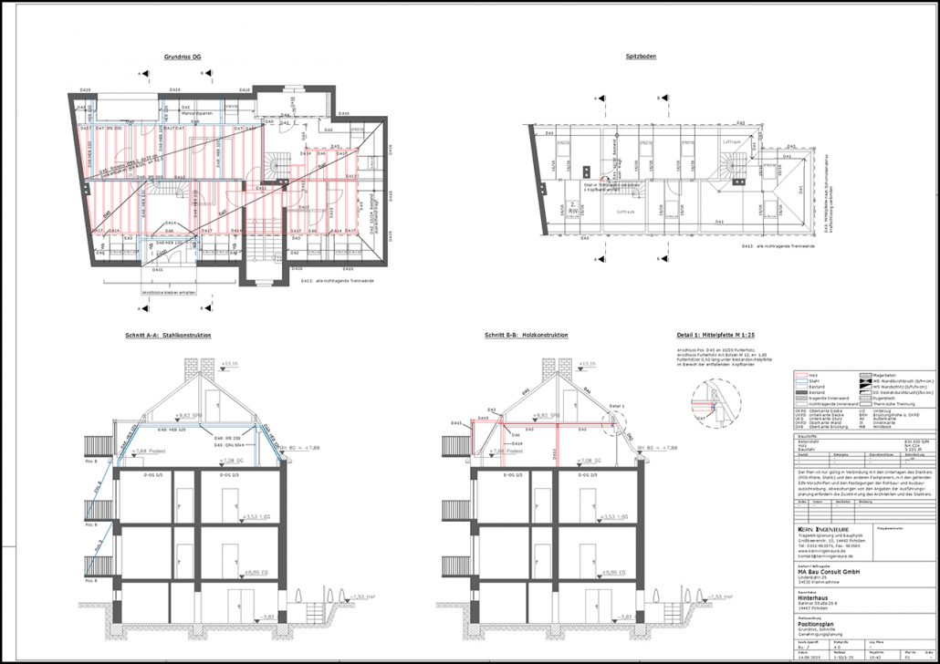
Denkmalgerechter Umbau von zwei Mehrfamilienhäusern in Potsdam
- Kernsanierung mit Einbau eines Mezzanin in beiden Wohnhäusern
- Errichtung von Balkonen
Bruttogeschossfläche
2800 m²
Bauherr
Privat
Architekt
MA Bauconsult GmbH, Kleinmachnow
Unsere Leistung
Tragwerksplanung LP 1-4
Planungs- und Ausführungszeitraum
2015-2018
Denkmalgerechter Umbau einer Villa am Heiligen See in Potsdam
- Kernsanierung mit Dachgeschossausbau unter Wahrung der historischen Bausubstanz
Bruttogeschossfläche
1300 m²
Bauherr
Privat
Architekt
3PO Bopst Melan Architektenpartnerschaft BDA, Potsdam
Unsere Leistung
Tragwerksplanung LP 1-6
Planungs- und Ausführungszeitraum
2017
Umbau und Sanierung einer Stadtvilla
- Herrschaftliche Villa in Berlin
- Umbau
Bruttogeschossfläche
350 m²
Bauherr
Privater Bauherr
Architekt
Bhap Blaschke Hülsey Architekten, Berlin
Unsere Leistung
Tragwerksplanung LP 1-6
Planungs- und Ausführungszeitraum
2018-2020
Dachgeschossausbau Hans-Thoma Straße 4 in Potsdam
- Zweigeschossiger Dachausbau mit Einbau eines Aufzuges und Balkonen
- Herstellung von vier hochwertigen Wohneinheiten
- Umbau im Denkmalschutz
Umbauter Raum im Dachgeschoss
1900 m³
Bauherr
Hans-Thoma-Projekt UG
Architekt
Braun & Braun Architekten, Berlin
Unsere Leistung
Tragwerksplanung LP 1-6, Wärmeschutz
Planungs- und Ausführungszeitraum
2015-2018
Betreutes Wohnen in Berlin
- Neubau
Bruttogeschossfläche
480 m²
Bauherr
Veritas GmbH, Berlin
Architekt
Hermann Altergott, Berlin
Unsere Leistung
Tragwerksplanung LP 1-6
Bauphysik – Nachweise nach EnEV und Schallschutz
Planungs- und Ausführungszeitraum
2016-2018












